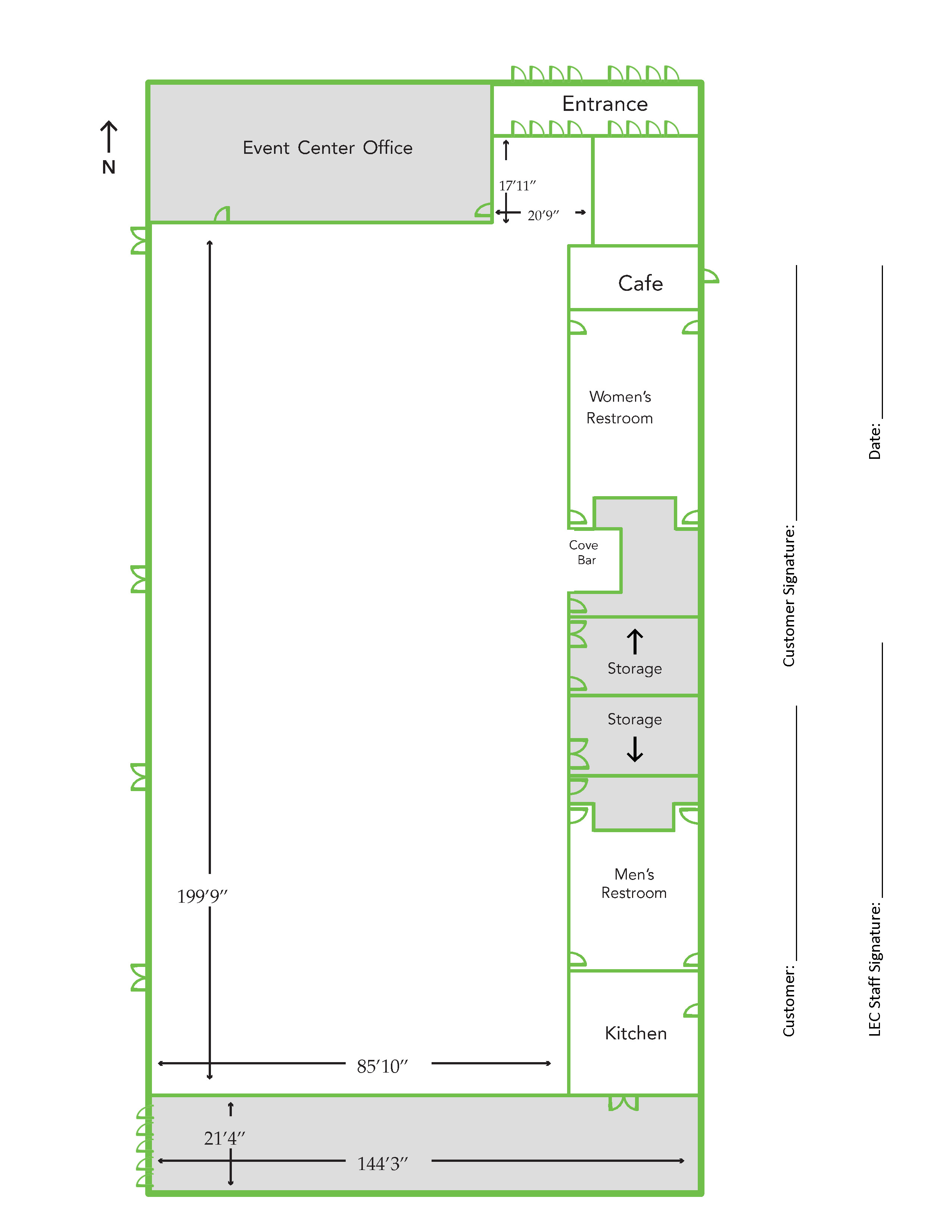
Lincoln Room

Square Feet: 17,200

Concrete Square Feet: 17,200

Dimensions: 86x200

Ceiling Height: 25

10x10 Booths: 80

Theatre Style: 1,800

Class Room: 900

Banquet: 1,100

lincoln room for banquets 002